| 索引号: |
003087762/202510-00007 |
信息分类: |
征地法定公告 |
| 内容分类: |
|
发文日期: |
2025-10-15 |
| 发布机构: |
自然资源和规划局杜集分局 |
生成日期: |
2025-10-15 |
| 生效日期: |
有效 |
废止时间: |
暂无 |
| 文 号: |
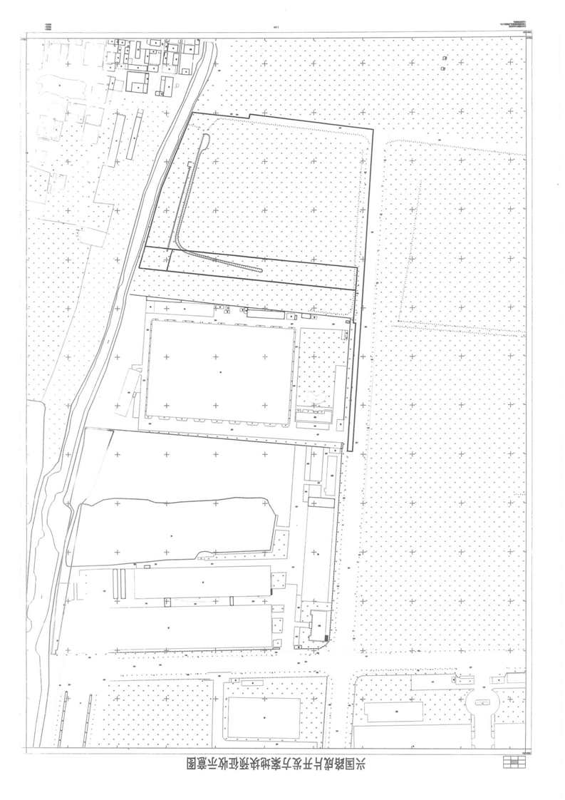
杜征预告【2025】8号 |
关键词: |
|
| 内容概述: |
|
| 索引号: |
003087762/202510-00007 |
| 信息分类: |
征地法定公告 |
| 内容分类: |
|
| 发文日期: |
2025-10-15 |
| 发布机构: |
自然资源和规划局杜集分局 |
| 生成日期: |
2025-10-15 |
| 生效日期: |
|
| 废止时间: |
暂无 |
| 文 号: |
杜征预告【2025】8号 |
| 关键词: |
|
| 内容概述: |
|
淮北市杜集区人民政府征收土地预公告(杜征预告【2025】8号)